---
title: "Gesten - Tranevænget"
date: "2025-09-18"
created: "2024-12-13"
---

[Hjem](https://boivejen.inst.vejen.dk/)

                    [Hvordan vil du bo](https://boivejen.inst.vejen.dk/hvordan-vil-du-bo)

                    [Kommunale byggegrunde](https://boivejen.inst.vejen.dk/hvordan-vil-du-bo/kommunale-byggegrunde)

                    [Alle udstykninger](https://boivejen.inst.vejen.dk/hvordan-vil-du-bo/kommunale-byggegrunde/alle-udstykninger)

                [Gesten - Tranevænget](https://boivejen.inst.vejen.dk/hvordan-vil-du-bo/kommunale-byggegrunde/alle-udstykninger/gesten-tranevaenget)

# Gesten - Tranevænget

## Byggegrunde på byens nyeste vænge i den nordlige del af Gesten

Området er beliggende naturskønt ud til åben mark og i tilknytning til Tranestien.

Gesten er den lille by med det store velkommen - Gesten er stedet hvor naboerne står sammen om at danne et fælles sammenhold for alle. Derfor bliver der afholdt både Gesten BYfesten, Gesten Julemarked og Gesten LANfest.

Her er kirke, idrætscenter, børnehave, spejderhytte, forsamlingshus, lægehus, dagligvareforretning m.v., så Gesten er ikke blot et sted, hvor man bor, men også et sted, hvor man lever.

I Gesten finder du tre dagplejere og Gesten Børnecenter huser både vuggestue, børnehave, SFO og folkeskole fra 0.-6.klasse.

 Inden for 10 km. radius finder du fire børnehaver og i Vejen (ca. 8 km) væk finder du mange dagplejere.

Ligeledes er der flere foreninger, og blandt andet kan I nyde fritiden i den lokale spejderforening, ved skytteforeningen eller hos den lokale sportsklub Gesten IF som tilbyder fodbold, badminton, gymnastik, X-training m.m.

Gesten har egen lokal MinKøbmand som ligger under 5 min kørsel væk. Og Gesten Kro ligger ligeledes tæt på.

## Oversigtskort over udstykningen

![](https://boivejen.inst.vejen.dk/i/MOLIRIMEDIA/ee1125f8-f7e8-4791-82af-08ddb87da2d4?width=800)

## Mindstepriser og tilslutningsbidrag

Mindstepriser for hver grund og dets areal| **Grund** | **Areal m**^**2**^ | **Mindstepris kr.\*** |  | **Tilladt bebyggelseform** |
| --- | --- | --- | --- | --- |
| Tranevænget 3 | 1.221 | 409.035 |  | åben-lav eller tæt-lav |
| Tranevænget 4 | 1.291 | 490.580 |  | åben-lav |
| Tranevænget 5 | 1.099 | 368.165 |  | åben-lav eller tæt-lav |
| Tranevænget 6 | 1.322 | 502.360 |  | åben-lav |
| Tranevænget 7 | 1.129 | 378.215 |  | åben-lav eller tæt-lav |
| Tranevænget 8 | 1.561 | 593.180 |  | åben-lav |
| Tranevænget 9 | 1.281 | 429.135 |  | åben-lav eller tæt-lav |
| Tranevænget 10 | 1.462 | 555.560 |  | åben-lav |
| Tranevænget 11 | 1.169 | 391.615 |  | åben-lav eller tæt-lav |
| Tranevænget 13 | 1.382 | 462.970 |  | åben-lav eller tæt-lav |

\*Mindstepriserne angivet ovenfor er inklusive moms og eksklusive tilslutningsbidrag til forsyningsselskaber.

OBS: Sammen med købesummen opkræver Vejen Kommune et tilslutningsbidrag til kloak 77.901,08  kr.,  vand 43.250,. kr., el 20.500 kr.  Alle priser er inklusive moms.
*I alt opkræves 141.651,08 kr. inklusive moms pr. boliggrund, da Vejen Kommune allerede har afholdt udgiften hertil.*

\*\*I forbindelse med tilkobling til forsyningen, skal køber selv tage fat i Vejen Forsyning angående etablering af en husstandspumpe.

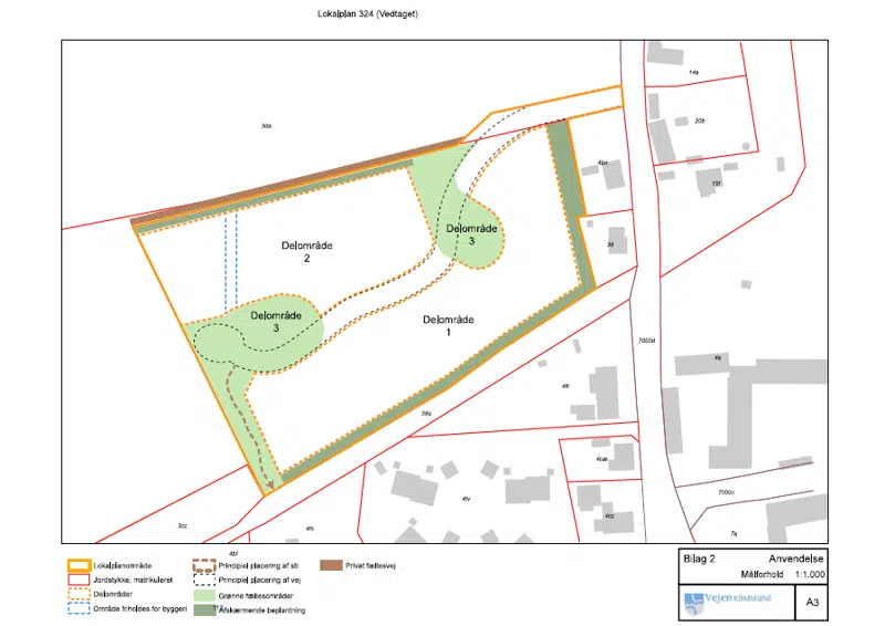
## Delområder og bebyggelsesformer

Det følger af lokalplanen at området er inddelt i delområder 1, 2 og 3. Opdelingen kan ses af billedet nedenfor.

Indenfor disse delområder er arealerne udlagt til følgende bebyggelse:
Delområde 1 udlægges til bebyggelse i form af åben-lav og/eller tæt-lav boligbebyggelse.
Delområde 2 udlægges til bebyggelse i form af åben-lav boligbebyggelse.
Delområde 3 omfatter de resterende områder til veje, stier, fællesarealer, beplantningsbælter, samt grønne områder med mulighed for anlæg til håndtering af overfladevand.

![](https://boivejen.inst.vejen.dk/i/MOLIRIMEDIA/828099c2-4014-48ef-6279-08dce55cd8b9?width=800)

                            [Køb en byggegrund - klik her](https://post.borger.dk/send/31e49274-e5ac-4724-851c-d50c72eeea5e/824f09df-3a45-4d0b-823f-5039e0824d8c/)

## Salgsmaterialer

###

                                    Dokumenter for Tranevænget

- [Skabelon for købsaftale - Tranevænget](https://boivejen.inst.vejen.dk/p/BoIVejen/Skabeloner for købsaftaler - samlet/Tranevænget---Gesten.pdf "Skabelon for købsaftale - Tranevænget")
- [Salgsplan for Tranevænget](https://boivejen.inst.vejen.dk/p/BoIVejen/Gesten - Tranevænget/Salgsplan_Tranevænget-Gesten_opdateret(1).pdf "Salgsplan for Tranevænget")
- [Måleblad](https://boivejen.inst.vejen.dk/p/BoIVejen/Gesten - Tranevænget/Måleblad---A2.pdf "Måleblad")
- [Område opdeling 1,2 og 3 fra Lokalplanen](https://boivejen.inst.vejen.dk/p/BoIVejen/Gesten - Tranevænget/område-opdeling-1-2-3-if-lokalplanen.pdf "Område opdeling 1,2 og 3 fra Lokalplanen")
- [Forsyningsinformation omkring husstandspumpe](https://boivejen.inst.vejen.dk/p/BoIVejen/Gesten - Tranevænget/Forsynings-information-angående-husstandspumpe.pdf "Forsyningsinformation omkring husstandspumpe")
- [Lokalplan 324](https://boivejen.inst.vejen.dk/p/BoIVejen/Gesten - Tranevænget/Lokalplan-nr.-324.pdf "Lokalplan 324")
- [Geoteknisk rapport](https://boivejen.inst.vejen.dk/p/BoIVejen/Gesten - Tranevænget/Geoteknisk-rapport---Gesten.pdf "Geoteknisk rapport")
- [Ledningskort - Skitse](https://boivejen.inst.vejen.dk/p/BoIVejen/Gesten - Tranevænget/Ledningsplan---Tranevænget--etape-1---opdateret-Okt24.pdf "Ledningskort - Skitse")
- [Arkæologisk udgravningsrapport fra Museet Sønderskov](https://boivejen.inst.vejen.dk/p/BoIVejen/Gesten - Tranevænget/Udgravningsrapport-fra-Museet-Sønderskov.pdf "Arkæologisk udgravningsrapport fra Museet Sønderskov")

###

                                    Forsyningsselskaber

**Forsyningsselskaber**

Vand: Gesten Vand, 22 10 70 76 / http://www.gesten-vand.dk

El: Trefor, 79 33 34 35 / http://www.trefor.dk/
Fiber: Ewii, [70 50 50 50](tel:73633100), [www.ewiifibernet.dk](http://www.ewiifibernet.dk/ "http://www.ewiifibernet.dk")

Kloak: Vejen Forsyning A/S, 76
32 66 00, [www.vejenforsyning.dk](http://www.vejenforsyning.dk/)

Husk at kontakte Vejen Forsyning for at få etableret en husstandspumpe - [læs mere her](https://boivejen.inst.vejen.dk/p/BoIVejen/Gesten - Tranevænget/Forsynings-information-angående-husstandspumpe.pdf "læs mere her")

###

                                    Attester

## Jordforureningsattest for Tranevænget

Ifølge Region Syddanmark er der ikke registreret forurening på grundene.

[Søg oplysning om grunden her](https://regionsyddanmark.dk/klima-og-miljo/vand-og-jord/sog-en-forurenet-grund "Søg oplysning om grunden her")

## Tingbogsattest

Tingbogsattest udleveres ved en handel. Ønskes den udleveret på forhånd, kan du bestille den her.

[Bestil en tingsbogsattest](https://www.borgeronline.dk/575/NemForm/Tingbogsattest "Bestil en tingsbogsattest")

## Værd at vide om køb af byggegrunde

###

                                    Inden du køber en byggegrund

### Hvilke vilkår er der når jeg reserverer en grund?

Du har mulighed for at reservere en byggegrund for en periode på 6 måneder. Efter de 6 måneder bortfalder din reservation automatisk i vores system, så du skal selv huske at kontakte os, hvis du ønsker at forlænge reservationen.

Det koster ikke noget at reservere en byggegrund.

Hvis du har reserveret en byggegrund, og en anden ønsker at købe grunden, skal du tilkendegive, om du ønsker at købe grunden eller vil ophæve reservationen. Tidsfristen er 8 hverdage.

Det betyder også, at du har mulighed for at afgive købstilbud på en byggegrund, der er reserveret af en anden. Hvis den anden senest efter 8 hverdage meddeler, at vedkommende ikke ønsker at købe grunden, så kan du købe grunden.

Spørgsmål om reservation kan rettes til Teknik & Miljø, tlf. 79 96 60 75 eller via [Digital Post](https://post.borger.dk/send/31e49274-e5ac-4724-851c-d50c72eeea5e/824f09df-3a45-4d0b-823f-5039e0824d8c/ "Send digital post om byggegrunde").

Ønsker du at reservere en byggegrund, så skal du udfylde vores digitale [reservationsformular](https://www.borgeronline.dk/575/NemForm/Reservationafbyggegrund "Byggegrunde - reservation")

###

### Kan jeg undersøge jordbunden på en grund, inden jeg køber den?

Hvis du gerne vil sikre dig, at dit drømmehus kan bygges på den grund, du overvejer at købe, så kan du indhente tilladelse hos os til at foretage en geoteknisk undersøgelse inden du køber grunden.

Tilladelsen gives under betingelse af, at undersøgelsen foretages for egen regning
af et geoteknisk firma, som vi på forhånd har godkendt, og at grunden efter
undersøgelsen reetableres til samme stand som inden undersøgelsen.

Hvis du ønsker en tilladelse, så kontakt Anne Kirstine Skytt på tlf. 79 96 60 55 eller via [Digital Post](https://post.borger.dk/send/31e49274-e5ac-4724-851c-d50c72eeea5e/824f09df-3a45-4d0b-823f-5039e0824d8c/ "Send digital post om byggegrunde").

###

### Hvilke vilkår er der for køb af en grund?

For hver udstykning er der udarbejdet en standardkøbsaftale. Af standardkøbsaftalen fremgår det, hvilke vilkår der er gældende for den kommende handel.

### Kan jeg købe en grund, der er reserveret af en anden?

Du har mulighed for at afgive købstilbud på en byggegrund, der er reserveret af en anden. Hvis den anden senest efter 8 hverdage meddeler, at vedkommende ikke ønsker at købe grunden, så kan du købe grunden.

Kontakt Teknik & Miljø i Vejen via [Digital Post](https://post.borger.dk/send/31e49274-e5ac-4724-851c-d50c72eeea5e/824f09df-3a45-4d0b-823f-5039e0824d8c/ "Send digital post om byggegrunde") eller på telefon 79 96 60 75, hvis du ønsker at afgive købstilbud på en grund.

####

### Kan jeg fortryde mit køb?

Købet er omfattet af reglerne om forbrugerbeskyttelse ved erhvervelse af fast ejendom mv. jf. lovbekendtgørelse nr. 1142 af 28. september 2007

Hvis du vil fortryde dit køb, skal du give os skriftlig underretning herom inden 6 hverdage. Fristen regnes fra den dag, aftalen indgås, uanset om aftalen er betinget af et eller flere forhold. Ved beregning af fristen medregnes ikke lørdage, søndage, helligdage eller Grundlovsdag.

Underretning om, at du vil fortryde købet, skal være kommet frem til os inden fristens udløb.

Hvis du vil fortryde dit køb, skal du desuden betale et beløb (godtgørelse) på 1% af den aftalte købesum til os. Dette beløb skal være betalt inden udløbet af 6-dages fristen.

###

### Kan prisen forhandles?

Det er ikke muligt for os at lave individuelle forhandlinger om priserne. Alle priserne er politisk vedtaget, og hvis en pris skal ændres, så kræver det en ny politisk beslutning efterfulgt af et offentligt udbud i 14 dage. Priserne revideres en gang om året.

###

### Hvornår er der overtagelsesdag?

Overtagelsesdatoen og betalingsfristen vil typisk ligge ca. en måned efter, at du har meddelt os, at du ønsker at købe grunden.

### Hvem skal jeg kontakte vedr. spørgsmål om lokalplan, forsyning eller byggeri?

Vi anbefaler at du undersøger om dit ønskede projekt kan opføres på den specifikke grund inden du meddeler ønske om køb af grunden.

Du kan finde kontaktoplysninger på forsyningsselskaberne på de enkelte sider for udstykningerne.

Hvis du har spørgsmål vedr. byggeri, forsyning eller lokalplan, så kontakt Teknik & Miljø via [Digital Post](https://post.borger.dk/send/31e49274-e5ac-4724-851c-d50c72eeea5e/824f09df-3a45-4d0b-823f-5039e0824d8c/ "Send digital post om byggegrunde")https://post.borger.dk/send/31e49274-e5ac-4724-851c-d50c72eeea5e/824f09df-3a45-4d0b-823f-5039e0824d8c/eller på tlf. 79 96 50 00. Vil du gerne være sikker på, at grunden ikke sælges til anden side i mellemtiden, så er du velkommen til at reservere grunden.

###

### Hvornår kan jeg søge om byggetilladelse?

Når du har meddelt os, at du ønsker at købe grunden, så kan du indsende din ansøgning om byggetilladelse. Du skal blot være opmærksom på, at udgiften til behandlingen af din ansøgning skal afholdes af dig, uanset om handlen efterfølgende fortrydes eller gennemføres.

Byggetilladelsen kan tidligst udstedes når købsaftalen er underskrevet, købesummen er betalt og overtagelsesdatoen er passeret.

Har du spørgsmål om byggetilladelser og anmeldelser, f.eks. om hvordan du ansøger om en byggetilladelse, og hvilket materiale der skal sendes med ansøgningen, kan du få flere oplysninger ved at klikke på linkene.

[Nyttige informationer inder du bygger](https://boivejen.inst.vejen.dk/MOLIRIPAGE/5e85177a-bed5-46aa-b3a0-e5ecb03da82c "Byggeri")

[Informationer om byggetilladelsen](https://boivejen.inst.vejen.dk/MOLIRIPAGE/102bc5af-6ab7-4bd8-af93-8c3073acf5ed "Informationer om byggetilladelsen")

Du er altid velkommen til at kontakte vores byggesagsbehandlere i Teknik & Miljø via [Digital Post](https://post.borger.dk/send/31e49274-e5ac-4724-851c-d50c72eeea5e/824f09df-3a45-4d0b-823f-5039e0824d8c/ "Send digital post om byggegrunde") eller tlf. 79 96 61 49 ved spørgsmål.

[Send Digital Post som borger](https://post.borger.dk/send/31e49274-e5ac-4724-851c-d50c72eeea5e/824f09df-3a45-4d0b-823f-5039e0824d8c/ "Send digital post om byggegrunde")

[Send Digital Post som virksomhed](https://virk.dk/digitalpost/new/31e49274-e5ac-4724-851c-d50c72eeea5e/824f09df-3a45-4d0b-823f-5039e0824d8c/ "Send digital post om byggegrunde")

###

### Hvad gør jeg, hvis jeg ikke kan finde skelpælene på grunden?

Du skal senest 8 hverdage efter aftalens indgåelse give meddelelse til os, hvis du ikke kan finde alle skelpæle, eller hvis nogle af dem er i stykker. Kontakt os via [Digital Post](https://post.borger.dk/send/31e49274-e5ac-4724-851c-d50c72eeea5e/824f09df-3a45-4d0b-823f-5039e0824d8c/ "Send digital post om byggegrunde") eller pr. tlf. 79 96 60 75.

Er der gået mere end 8 hverdage, så skal du selv bestille en landinspektør og afholde udgiften hertil.

Ofte kan en skelpæl være helt eller delvist dækket af græs. Hvis du er i tvivl om, hvor på grunden du skal lede, så kan du se på et måleblad, hvor skelpælene er placeret. Målebladene er tilgængelige på hjemmesiden under siderne for de enkelte udstykninger.

###

### Hvordan bestiller jeg en asfaltrampe ind til grunden?

Når dit byggeri er udført, har du mulighed for at bestille en asfaltrampe for, at sikre adgang fra kørebanen og op til din nye overkørsel.

Du skal dermed kontakte Teknik & Miljø via [Digital Post](https://post.borger.dk/send/31e49274-e5ac-4724-851c-d50c72eeea5e/824f09df-3a45-4d0b-823f-5039e0824d8c/ "Send digital post om byggegrunde"), når du er klar til at få etableret asfaltrampen.

Vejen Kommune udfører og afholder udgiften til etableringen af asfaltrampen.

[Send Digital Post som borger](https://post.borger.dk/send/31e49274-e5ac-4724-851c-d50c72eeea5e/824f09df-3a45-4d0b-823f-5039e0824d8c/ "Send digital post om byggegrunde")

[Send Digital Post som virksomhed](https://virk.dk/digitalpost/new/31e49274-e5ac-4724-851c-d50c72eeea5e/824f09df-3a45-4d0b-823f-5039e0824d8c/ "Send digital post om byggegrunde")

###

### Jeg har ikke bygget på grunden - hvad sker der så?

Vi ved at der kan være mange årsager til, at byggeri endnu ikke er påbegyndt.

Hvis du ikke har påbegyndt dit byggeri indenfor den frist, som er angivet i din købsaftale, så kan du søge om forlængelse af byggefristen eller om tilladelse til videresalg i ubebygget stand.

Hvis byggefristen er overskredet, så har vi ret til at købe grunden tilbage. Det er dog vigtigt for os at gøre opmærksom på, at det ikke er noget vi har pligt til, selvom køber ønsker det.

I de seneste år, har vi ikke ønsket at købe grunde tilbage. I stedet har vi forlænget byggefristen eller givet tilladelse til videresalg jf. de vilkår der står i købsaftalen.

Husk at gennemlæse vilkårene i købsaftalen grundigt, så du kender de specifikke vilkår.

###

### Hvordan aflyser jeg servitutten om byggepligt/videresalg?

Når dit byggeri er færdigmeldt, så kan servitutten om byggepligt og forbud mod videresalg aflyses. De fleste aflyser først servitutten i forbindelse med, at grunden sælges videre.

Du skal bede din rådgiver om at anmelde en aflysningpåtegning i tinglysningssystemet, som vi kvitterer på som påtaleberettigede. Vejen Kommune underskriver med en enkelt underskrift i tinglysningssystemet.

Ved spørgsmål vedr. aflysning af servitutter kontakt os venligst via [Digital Post](https://post.borger.dk/send/31e49274-e5ac-4724-851c-d50c72eeea5e/824f09df-3a45-4d0b-823f-5039e0824d8c/ "Send digital post om byggegrunde") eller tlf. 79 96 60 75.

###

### Hvem skal jeg kontakte, hvis jeg vil købe en grund?

Hvis du gerne vil købe en byggegrund af Vejen Kommune, så kontakt Teknik & Miljø i Vejen via [Digital Post](https://post.borger.dk/send/31e49274-e5ac-4724-851c-d50c72eeea5e/824f09df-3a45-4d0b-823f-5039e0824d8c/ "Send digital post om byggegrunde")eller på telefon 79 96 60 75.

Teknik & Miljø hjælper dig godt i gang med handlen, og hjælper dig med at få svar på de spørgsmål du eventuelt måtte have.

###

                                    Kontakt for at købe en byggegrund

Hvis du gerne vil købe en byggegrund af Vejen Kommune, eller mangler flere informationer, så kontakt Teknik & Miljø:

Anne Kirstine Skytt
Tlf. 79 96 60 55 eller send os en besked via Digital Post:

[Send digital post som borger](https://post.borger.dk/send/31e49274-e5ac-4724-851c-d50c72eeea5e/824f09df-3a45-4d0b-823f-5039e0824d8c/ "Send digital post om byggegrunde")

[Send digital post som virksomhed](https://virk.dk/digitalpost/new/31e49274-e5ac-4724-851c-d50c72eeea5e/824f09df-3a45-4d0b-823f-5039e0824d8c/ "Send digital post om byggegrunde")

Vi hjælper dig godt i gang med handlen, og hjælper dig med at få svar på de spørgsmål du eventuelt måtte have.

###

                                    Byggeansøgningens 5 trin

## Før du søger: De fem trin i en byggeansøgning

Før du starter et nyt byggeri op, skal du søge kommunen om tilladelse.

Læs om de fem trin i en byggeansøgning før du søger byggetilladelse. Du skal være forberedt på, at det er en kompliceret proces, hvorfor det ofte er en rigtig god ide at få hjælp af en rådgiver, så du er sikker på, at du får indsendt korrekt dokumentation.

[Se mere om processen her](https://vejen.dk/borger/bolig-byggeri-og-flytning/byggeri/foer-du-soeger-de-fem-trin-i-en-byggeansoegning "Se mere om processen her")

![De 5 trin i en byggeansøgning. ](https://boivejen.inst.vejen.dk/i/MOLIRIMEDIA/6f6adc99-6ab0-47fa-b828-08dcb1f3aba3?width=800)

###

                                    Kontakt en byggesagsbehandler

Når du skal i gang med et nyt byggeprojekt, er der mange ting, du skal være opmærksom på. På Vejen Kommunes hjemmeside kan du finde de informationer, du har brug for.

Vi opfordrer dig til at tage kontakt til en byggesagsbehandler inden du går i gang med dit byggeprojekt. På den måde kan du forventningsafstemme dit projekt inden du går i gang. Det gælder både i forhold til din tidsplan og så du sikrer hvad der er muligt indenfor lokalplanen i det område, du ønsker at bygge. En forhåndsdialog sikrer typisk en hurtig sagsbehandlingstid.

### Kontakt Byg & Ejendomsdata via Sikker Post

[Send Digital Post som borger](https://post.borger.dk/send/31e49274-e5ac-4724-851c-d50c72eeea5e/790115cf-6095-49a4-85ca-1c78b49d6060/ "Send Digital Post om byggeri via borger.dk")

[Send Digital Post som virksomhed](https://virk.dk/digitalpost/new/31e49274-e5ac-4724-851c-d50c72eeea5e/790115cf-6095-49a4-85ca-1c78b49d6060/ "Send Digital Post om byggeri via virk.dk")

### Søg en byggetilladelse via Byg & Miljø

[Søg en byggetilladelse](https://www.bygogmiljoe.dk/ "Søg en byggetilladelse")

## Reserver en byggegrund

###

                                    Værd at vide om reservation af en byggegrund

Du har mulighed for at reservere en byggegrund for en periode på 6 måneder. Efter de 6 måneder bortfalder din reservation.

Du kan have en aktiv reservation pr. husstand.

Hvis du har reserveret en byggegrund, og en anden ønsker at købe grunden, skal du tilkendegive, om du ønsker at købe grunden eller vil ophæve reservationen. Tidsfristen er 8 hverdage.

Det betyder også, at du har mulighed for at afgive købstilbud på en byggegrund, der er reserveret af en anden. Hvis den anden senest efter 8 hverdage meddeler, at vedkommende ikke ønsker at købe grunden, så kan du købe grunden.

Ønsker du at reservere en byggegrund, så skal du udfylde vores digitale reservationsformular nedenfor. Du skal bruge MitID til at udfylde formularen.

### [Reservér en byggegrund](https://www.nemform.dk/575/ReservationByggegrund "Reservér en byggegrund")

Du kan få mere information om vores byggegrunde og vilkår i linket ovenfor: "Inden du køber en byggegrund"

Spørgsmål om reservation kan også rettes til Teknik & Miljø, tlf. 79 96 60 75 eller via [Digital Post](https://post.borger.dk/send/31e49274-e5ac-4724-851c-d50c72eeea5e/824f09df-3a45-4d0b-823f-5039e0824d8c/ "Send digital post om byggegrunde").

[Reservér en grund her](https://www.nemform.dk/575/ReservationByggegrund)

Grøn = ledig
Lysegrøn = reserveret

### Ønsker du at købe en allerede reserveret grund?

Du har mulighed for at afgive købstilbud på en byggegrund, der er reserveret af en anden. Hvis den anden senest efter 8 hverdage meddeler, at vedkommende ikke ønsker at købe grunden, så kan du købe grunden. Kontakt os for nærmere info.

## Hvad er der i Gesten

Gesten er den lille by med det store velkommen - Gesten er stedet hvor naboerne står sammen om at danne et fælles sammenhold for alle.
Derfor bliver der afholdt både Gesten Byfest, Gesten Julemarked og Gesten LANfest.

Her er kirke, idrætscenter, børnehave, spejderhytte, forsamlingshus, lægehus, dagligvareforretning m.v., så Gesten er ikke blot et sted, hvor man bor, men også et sted, hvor man lever.

I Gesten finder du tre dagplejere og Gesten Børnecenter (0.-6.klasse). Inden for 10 km. radius finder du fire børnehaver og i Vejen (ca. 8 km) væk finder du mange dagplejere.
I Vejen er Østerbyskolen den folkeskole, der ligger tættest på. Og ellers finder du Andst Børnecenter tæt på og Vejen Friskole ligger ca. 7 km. væk (i Læborg).
[Skoler](https://vejen.dk/borger/familie-boern-og-unge/skole "Skoler")[Dagtilbud 0-6 år](https://vejen.dk/borger/familie-boern-og-unge/dagtilbud-0-6-aar "Dagtilbud 0-6 år")

I Gesten er der smukke åndehuller med rig natur og du finder således både Tranestien som er en natursti, der indbyder til mange gode vandreture, samt Mindelunden, en hyggelig fredfyldt plet der vidner om Gestens historie gennem 2. verdenskrig.

Sognet er et typisk landsogn, hvor landbrugserhvervet stadig sætter sit præg. Af befolkningen er 57% “i arbejdsstyrken”, 28% er “andre”, d.v.s. pensionister og unge under uddannelse,  børn under 15 år udgør 15%, så der er ikke tale om en “soveby”. Her både arbejdes og leves, – også i fritiden.
De mange foreninger og aktiviteter vidner om et rigt fritidsliv.

Gesten ligger kun 7 km fra Vejen, 12 km. fra Lunderskov og 22 km. fra Kolding Storcenter. Der er mulighed for at komme på/fra motorvejen ved Gesten. Her er kun 8 km til nærmeste motorvejs rampe.

Så lang tid tager det at kære fra Gesten til...

- Vejen: 12 minutter
- Kolding: 19 minutter
- Billund: 27 minutter
- Esbjerg: 37 minutter
- Haderslev: 37 minutter
- Varde: 40 minutter
- Odense: 1 time og 7 minutter
- Aarhus: 1 time og 18 minutter

## Anne Skytt  - Team Køb & Salg

### Teknik & Miljø

                                Rådhuspassagen 3, 6600 Vejen

### Ring til os

[79 96 60 55](tel:79%2096%2060%2055)

### Skriv til os

[Send digital post som borger](https://post.borger.dk/send/31e49274-e5ac-4724-851c-d50c72eeea5e/824f09df-3a45-4d0b-823f-5039e0824d8c/)

[Send digital post som virksomhed](https://virk.dk/digitalpost/new/31e49274-e5ac-4724-851c-d50c72eeea5e/824f09df-3a45-4d0b-823f-5039e0824d8c/)
